坂之上2丁目建売住宅
sakanoue2tyoumetateurijyutaku

バルコニーとタイルデッキの有る家
◇坂之上駅近くなので通勤・通学に便利な立地♪
◇駐車が3台以上可能な90坪の広々敷地、庭も広いのでお子様とのボール遊びも可能です♪
◇キッチンに隣接したタイルデッキはBBQをしたり夏場のプール遊びにおススメ!
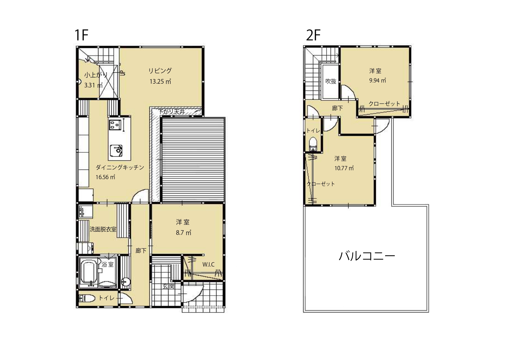
◇階段下の小上がり畳スペースは畳が敷いてあるので、お子様のプレイルームとしてやお昼寝時間に役立ちます♪
◇35㎡のバルコニーは洗濯物を大量に干すことも出来るし。過ごしやすい気温の時は外の空気に触れながらのティータイム等如何でしょう。
infomation
| 所在地 | 坂之上2丁目4087-3(住居表示坂之上2丁目11番末番未定) | ||
|---|---|---|---|
| 土地面積 | 300.84㎡(91坪) | ||
| 建物面積 | 103.51㎡(31.31坪) | ||
| 築年月 | 2024年1月完成 | ||
| 価格 | 3178万円 | ||
| 交通 | JR指宿枕崎線 坂之上 徒歩7分 JR指宿枕崎線 慈眼寺 徒歩27分 バス停 鹿児島交通/坂之上バス停 距離350m | 学校区 | 錦江台小学校/和田中学校 |
|---|---|---|---|
| 建物の構造 | 木造2階建て | 間取り | 3LDK |
| 駐車場 | 3台以上可能 | 都市計画 | 市街化区域 |
| 用途地域 | 第一種低層住居専用地域 | 建ぺい率/容積率 | 50%/78% |
| 私道持分 | 無し | 道路幅員 | 3m |
| 取引態様 | 一般媒介 | 引渡し | 要相談 |
| 設備 | オール電化 EV車充電設備 建設住宅性能評価書付き シューズインクローゼット | 備 考 | |
| 情報公開日等 | 公開日: 2026年2月1日 | ||
| 更新日: 2026年5月7日 | |||
| 次回更新予定日: 2026年5月末 |
標準仕様